Elegante palazzina a Rescaldina

Classe energetica A
UNITA ABITATIVE DISPONIBILI
9 unità
STATO IMMOBILE
in costruzione
LUOGO
Rescaldina, via Veneto ang. via Monte Grappa

PALAZZINA DI 9 UNITA'

Rescaldina centro, via Veneto angolo via Monte Grappa, a pochi passi dalla stazione e a tutti i principali servizi, prossima realizzazione in piccola ed elegante palazzina di sole 9 unità abitative, proponiamo appartamenti di 3 – 4 locali tutti con ampio terrazzo e balcone comprensivi di box e cantina.

  • muri perimetrali, compresi quelli con le unità immobiliari confinanti verranno realizzati ad altissimo isolamento termico/acustico
  • serramenti in pvc, monoblocco con telaio ad alto isolamento termico/acustico
  • riscaldamento a pavimento alimentato con pompa di calore
  • pannelli fotovoltaici
  • predisposizione impianto di purificazione dell'aria tramite il sistema di ventilazione meccanica
  • tapparelle in alluminio motorizzate
  • predisposizione impianto di antifurto
  • predisposizione climatizzazione
  • impianto elettrico Bticino Living now che unisce il design innovativo alla tecnologia smart


CONSEGNA PREVISTA LUGLIO 2028

RICHIEDI INFORMAZIONI

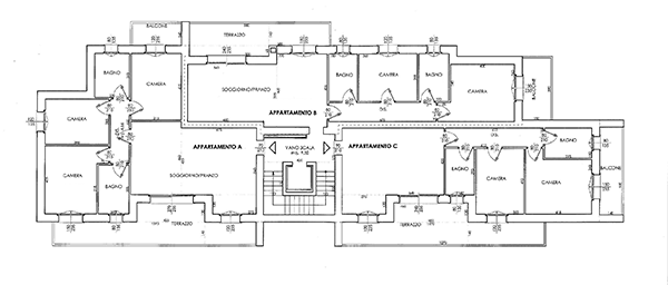
Tipologia appartamento n. A: 4 locali di mq 128, ingresso, soggiorno con cucina a vista i quali si affacciano sul terrazzo coperto di mq 23, 3 camere da letto di cui una delle 2 camerette con balcone, doppi servizi entrambi con finestra, box singolo e cantina.
€ 335.000,00 ( possibilità di box doppio).

Tipologia appartamento n. B: 3 locali di mq 109, ingresso, soggiorno con cucina a vista i quali si affacciano sul terrazzo coperto di mq 15, 2 camere da letto di cui la matrimoniale con balcone, doppi servizi entrambi con finestra, box singolo e cantina.
€ 291.000,00 ( possibilità di box doppio)

Tipologia appartamento n. C: 3 locali di mq 107, ingresso, soggiorno con cucina a vista i quali si affacciano sul terrazzo coperto di mq 23, 2 camere da letto di cui la matrimoniale con balcone, doppi servizi entrambi con finestra, box singolo e cantina.
€ 286.000,00 ( possibilità di box doppio).


Tipologia appartamento n. B: 3 locali di mq 109, ingresso, soggiorno con cucina a vista i quali si affacciano sul terrazzo coperto di mq 15, 2 camere da letto di cui la matrimoniale con balcone, doppi servizi entrambi con finestra, box singolo e cantina.
€ 295.000,00 ( possibilità di box doppio)

Tipologia appartamento n. C: 3 locali di mq 107, ingresso, soggiorno con cucina a vista i quali si affacciano sul terrazzo coperto di mq 23, 2 camere da letto di cui la matrimoniale con balcone, doppi servizi entrambi con finestra, box singolo e cantina.
€ 291.000,00 ( possibilità di box doppio).


Tipologia appartamento n. B: 3 locali di mq 109, ingresso, soggiorno con cucina a vista i quali si affacciano sul terrazzo coperto di mq 15, 2 camere da letto di cui la matrimoniale con balcone, doppi servizi entrambi con finestra, box singolo e cantina.
€ 299.000,00 ( possibilità di box doppio)

Tipologia appartamento n. C: 3 locali di mq 107, ingresso, soggiorno con cucina a vista i quali si affacciano sul terrazzo coperto di mq 23, 2 camere da letto di cui la matrimoniale con balcone, doppi servizi entrambi con finestra, box singolo e cantina.
€ 297.000,00 ( possibilità di box doppio).